答疑:水电图,这两个符号是什么

提问网友:请详细回答,我秒采纳
提问日期:2025-10-26 08:03:17

水电图


解答网友:探索

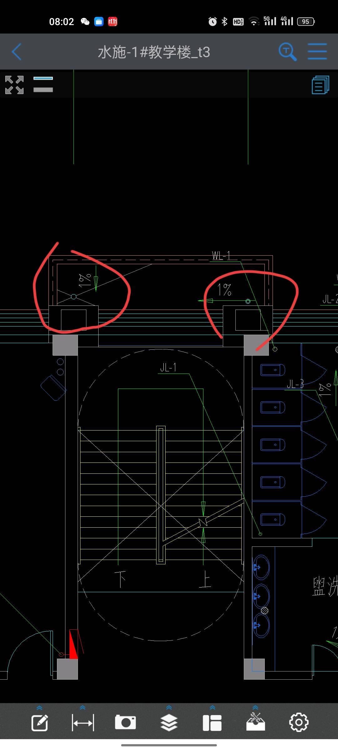
参考一下土建图纸,应该是坡度的比例。

解答网友:大家广联

钻石专家

屋面找坡   箭头是   找坡方向 1%是坡比    圆圈是  落水口   白线是找坡分界线

解答网友:nh

钻石专家

左是地漏,右是立管

解答网友:沈继平

白银专家

就是作地面的坡度

解答网友:詠哥

钻石专家

放坡坡度

0

评论0

请先
广铁房发[2016]148号 广铁(集团)公司关于公布《广铁集团路外涉铁工程使用铁路用地实施细则》的通知.pdf
广铁房发[2016]148号 广铁(集团)公司关于公布《广铁集团路外涉铁工程使用铁路用地实施细则》的通知.pdf
10分钟前 有人购买 去瞅瞅看
没有账号?注册  忘记密码?

社交账号快速登录

微信扫一扫关注
扫码关注后会自动登录网站