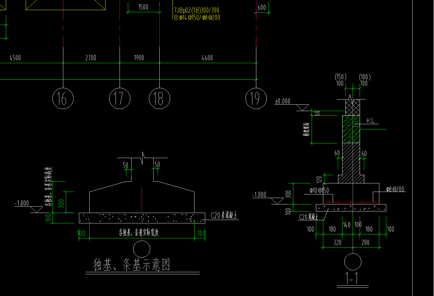
答疑:请问基础底标高是按-2.0还是-1.8呢

提问网友:热巴巴
提问日期:2025-10-25 12:43:22

基础底

标高


已采纳
解答网友:薛子庆

黄金专家

是-1.8,调整-2米构建底标高

0

评论0

请先
DLT_5219-2023_架空输电线路基础设计规程(正式版).pdf
DLT_5219-2023_架空输电线路基础设计规程(正式版).pdf
5分钟前 有人购买 去瞅瞅看
没有账号?注册  忘记密码?

社交账号快速登录

微信扫一扫关注
扫码关注后会自动登录网站