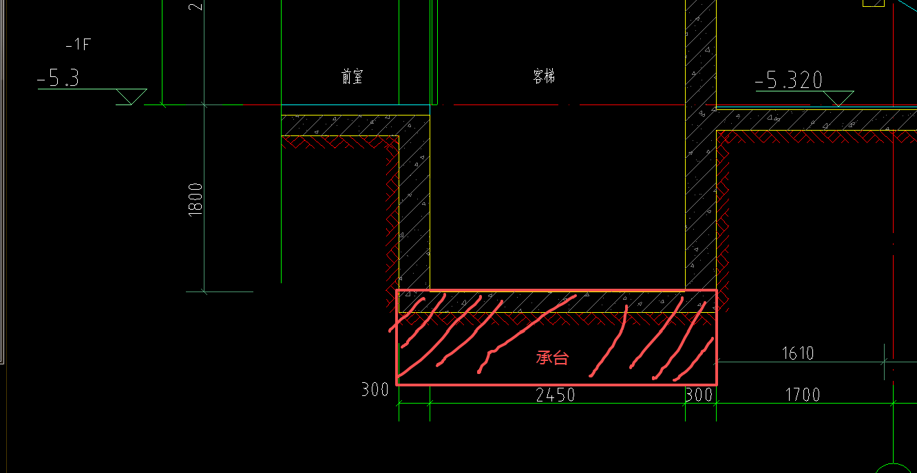
答疑:这个电梯基坑底板和承台面是重叠的要绘制吗?计算电梯基坑外侧防水需要计算底板的嘛?

提问网友:小官
提问日期:2025-10-24 16:33:45

基坑底板

2025-10-24 16:36:17 补充

外侧


解答网友:阿古木力

黄金专家

电梯基坑没有一个单独的大样图吗,你这个建筑剖面吧,电梯基坑井壁大样没有吗

解答网友:天山雪豹

黄金专家

计算底板防水

0

评论0

请先
NBT 11737-2024电力电缆隧道附属设施设计规程
NBT 11737-2024电力电缆隧道附属设施设计规程
3分钟前 有人购买 去瞅瞅看
没有账号?注册  忘记密码?

社交账号快速登录

微信扫一扫关注
扫码关注后会自动登录网站