答疑:地下坡道

提问网友:VS的VSA
提问日期:2025-10-23 16:36:10

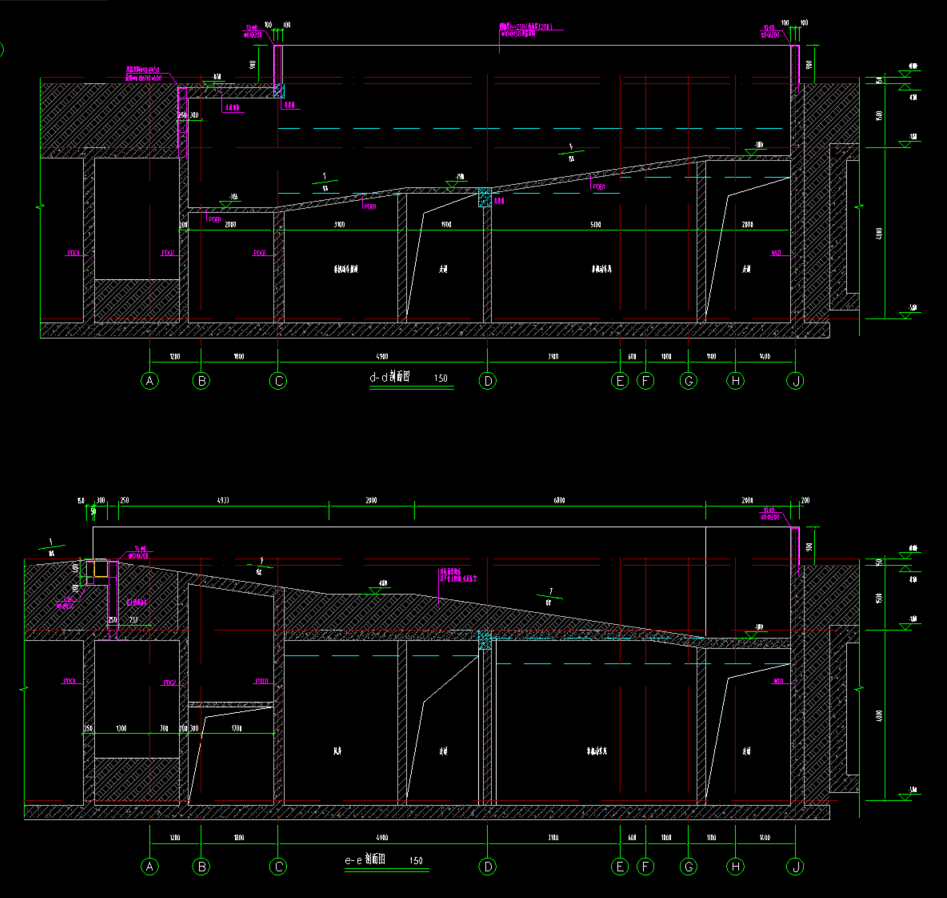
能不能请大佬讲解一下坡道的绘制思路,目前只想到绘制墙体及圈梁,其余就没有思路了,请讲解一下绘制墙墙体答疑解惑广联达服务新干线


解答网友:十年工程人

建筑行业快速问答平台-答疑解惑

坡道建模  再用坡道线处理就可以

0

评论0

请先
2021-2024年 江苏省人防工程施工图设计、审查质量抽查项目常见问题汇编.pdf
2021-2024年 江苏省人防工程施工图设计、审查质量抽查项目常见问题汇编.pdf
9分钟前 有人购买 去瞅瞅看
没有账号?注册  忘记密码?

社交账号快速登录

微信扫一扫关注
扫码关注后会自动登录网站