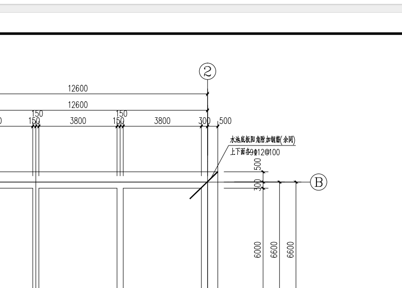
答疑:阳角放射筋,图中的水池底板阳角附加钢筋怎么算量?两个图描述的是同一种钢筋吗?

提问网友:卿
提问日期:2025-10-23 16:10:57

附加钢筋放射筋


解答网友:河畔晨光

黄金专家

表格计算放射筋

是的

解答网友:凌雪

白银专家

是,问设计那个为准

解答网友:郭郭

黄金专家

是的 ,但钢筋型号有点矛盾

0

评论0

请先
DZ/T 0401-2022 矿山地质工作规范.pdf
DZ/T 0401-2022 矿山地质工作规范.pdf
1分钟前 有人购买 去瞅瞅看
没有账号?注册  忘记密码?

社交账号快速登录

微信扫一扫关注
扫码关注后会自动登录网站