提问网友:工地联盟
提问日期:2025-10-23 14:31:03
解答网友:薛子庆
黄金专家
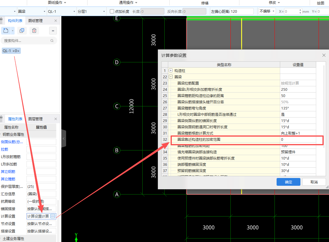
两端加密1.2米,箍筋输入格式13c8@100/200(2)
解答网友:星霜荏苒
钻石专家
圈梁两端箍筋加密区1200
解答网友:河畔晨光
黄金专家
靠柱1200范围圈梁箍筋加密,按正常箍筋间距定义,
汇总计算后,编辑钢筋中增加加密范围箍筋数量,锁定。
解答网友:凌雪
白银专家

解答网友:十年工程人
就是两个柱子之间的圈梁,距离柱子边1.2m范围内箍筋加密
提问网友:工地联盟
提问日期:2025-10-23 14:31:03
解答网友:薛子庆
黄金专家
两端加密1.2米,箍筋输入格式13c8@100/200(2)
解答网友:星霜荏苒
钻石专家
圈梁两端箍筋加密区1200
解答网友:河畔晨光
黄金专家
靠柱1200范围圈梁箍筋加密,按正常箍筋间距定义,
汇总计算后,编辑钢筋中增加加密范围箍筋数量,锁定。
解答网友:凌雪
白银专家

解答网友:十年工程人
就是两个柱子之间的圈梁,距离柱子边1.2m范围内箍筋加密
评论0