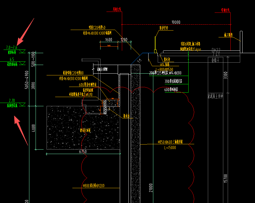
答疑:基坑支护土方大开挖,不同剖面的坡顶标高、底板垫层底不一样,如何确定开完深度?

提问网友:早春不过一棵树
提问日期:2025-10-22 17:27:48

垫层底标高答疑解惑


解答网友:GXZ

钻石专家

布置好基础的垫层,在垫层界面生成土方就可以识别开挖的底部标高

0

评论0

请先
最新《河北省建设工程工期定额》-冀建市[2014]38号
最新《河北省建设工程工期定额》-冀建市[2014]38号
9分钟前 有人购买 去瞅瞅看
没有账号?注册  忘记密码?

社交账号快速登录

微信扫一扫关注
扫码关注后会自动登录网站