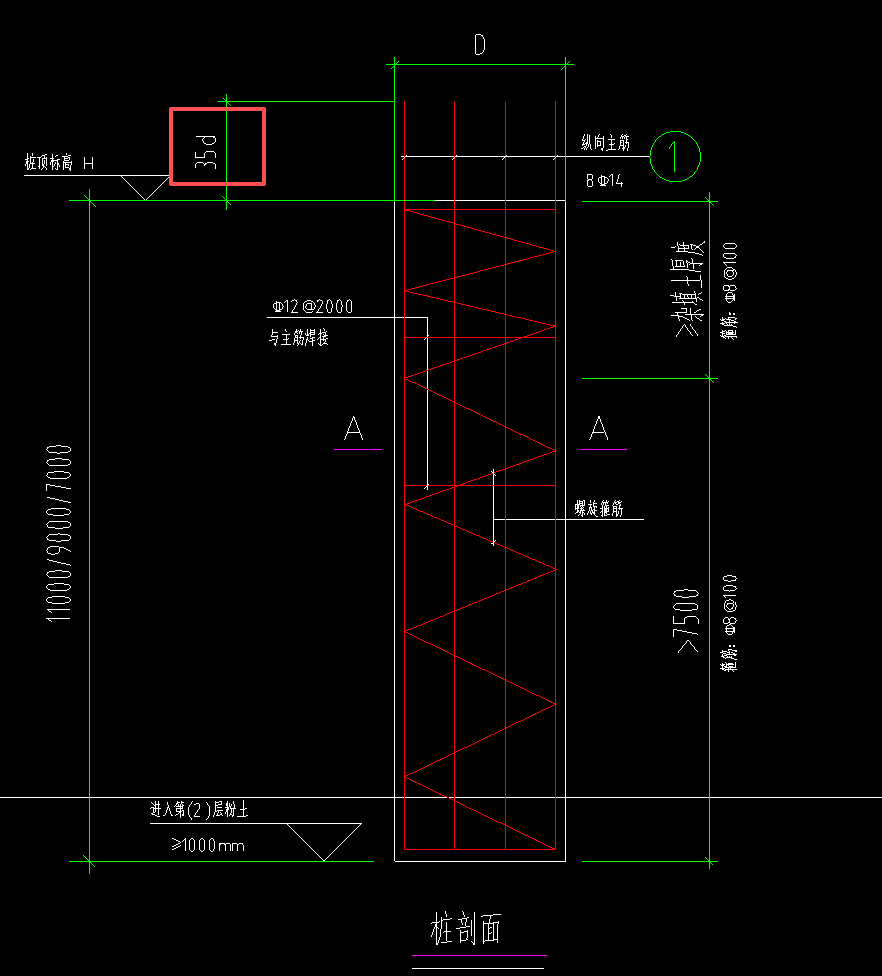
答疑:桩纵筋这个35d长度是在哪里设置?

提问网友:关你什么柿
提问日期:2025-10-21 12:02:31

桩纵筋

2025-10-21 12:05:50 补充

答疑解惑怎么设置了35d出来是43d


已采纳
解答网友:星辰大海

钻石专家

广联达服务新干线

解答网友:钢筋撑起半边天

钻石专家

锚固里定义,编辑钢筋里调整一下就好了

0

评论0

请先
2025.07.10-农业农村部《农田建设项目概算编制规定》(2025年6月版)
2025.07.10-农业农村部《农田建设项目概算编制规定》(2025年6月版)
9分钟前 有人购买 去瞅瞅看
没有账号?注册  忘记密码?

社交账号快速登录

微信扫一扫关注
扫码关注后会自动登录网站