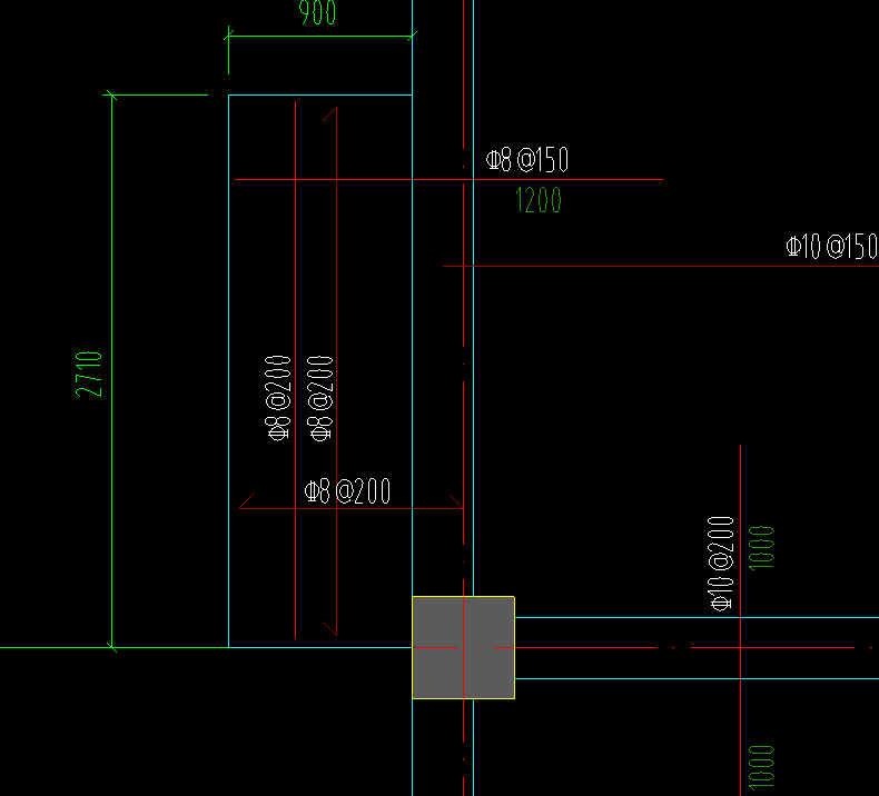
答疑:这块板钢筋怎么布置比较好,用xy向布置,c8-150的钢筋弯折加1200?

提问网友:栗山未来
提问日期:2025-10-21 11:36:14

弯折


解答网友:雪花飘 飘

铂金专家

用xy向布置,

c8-150的用跨板受力筋布置

解答网友:故乡的云

白银专家

用跨板受力筋布置即可。

解答网友:钢筋撑起半边天

钻石专家

底筋双向布置C8-200  面筋垂直向单板布置C8-200   C8-150用跨板受力筋定义,左边有弯折,右边没有弯折,软件里会自动考虑的

0

评论0

请先
2025.6.13-算脚手架用量不求人!盘扣式脚手架工程量自动计算表,现成公式,一键出结果!Excel下载!
2025.6.13-算脚手架用量不求人!盘扣式脚手架工程量自动计算表,现成公式,一键出结果!Excel下载!
8分钟前 有人购买 去瞅瞅看
没有账号?注册  忘记密码?

社交账号快速登录

微信扫一扫关注
扫码关注后会自动登录网站