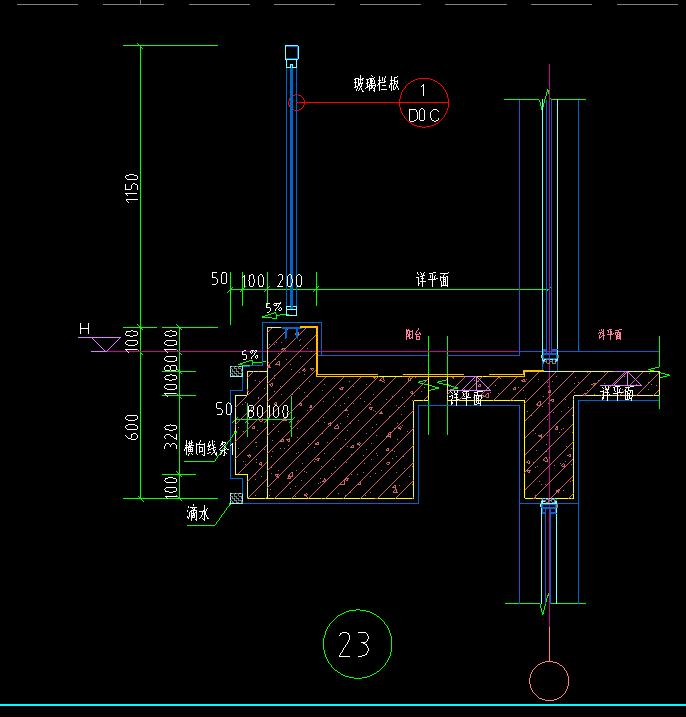
答疑:请问玻璃栏板下面这个部分怎么建模

提问网友:半只橘
提问日期:2025-10-21 09:08:21

栏板

答疑解惑

广联达服务新干线


解答网友:趁年轻去努力

白银专家

自定义挑檐

解答网友:老牛

黄金专家

如为整体浇筑,建议异形梁或突出部分计为挑檐

0

评论0

请先
QGDW 104747-2023 电网自动电压控制技术规范
QGDW 104747-2023 电网自动电压控制技术规范
8分钟前 有人购买 去瞅瞅看
没有账号?注册  忘记密码?

社交账号快速登录

微信扫一扫关注
扫码关注后会自动登录网站