提问网友:半只橘
提问日期:2025-10-20 14:42:33
解答网友:钢筋撑起半边天
钻石专家
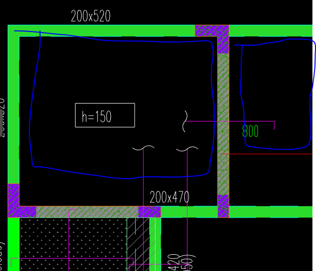
左边的板
解答网友:天山雪豹
黄金专家
左面
解答网友:星霜荏苒
钻石专家
跨左边整块板
解答网友:开拓者
专家
解答网友:十年工程人

这个筋叫跨版受力筋
提问网友:半只橘
提问日期:2025-10-20 14:42:33
解答网友:钢筋撑起半边天
钻石专家
左边的板
解答网友:天山雪豹
黄金专家
左面
解答网友:星霜荏苒
钻石专家
跨左边整块板
解答网友:开拓者
专家
解答网友:十年工程人

这个筋叫跨版受力筋
评论0