答疑:请问图中kbz是什么,它这一个柱身截面一个柱头截面是不是不能识别柱表?

提问网友:白银武
提问日期:2025-10-20 10:39:43

柱表


解答网友:雪莲

铂金专家

能识别

解答网友:小牛马

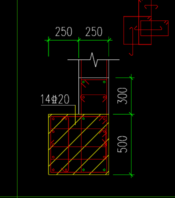
柱头应该是这种吧

0

评论0

请先
GB/T 46371-2025 储能电站安全标志技术规范.pdf
GB/T 46371-2025 储能电站安全标志技术规范.pdf
10分钟前 有人购买 去瞅瞅看
没有账号?注册  忘记密码?

社交账号快速登录

微信扫一扫关注
扫码关注后会自动登录网站