答疑:钢板桩,按图纸上那个来测量长度的?是长÷2嘛?

提问网友:努力搬砖的康康
提问日期:2025-10-16 08:27:17

桩量长度


解答网友:钢筋混凝土

专家

长/2是什么

解答网友:河畔晨光

黄金专家

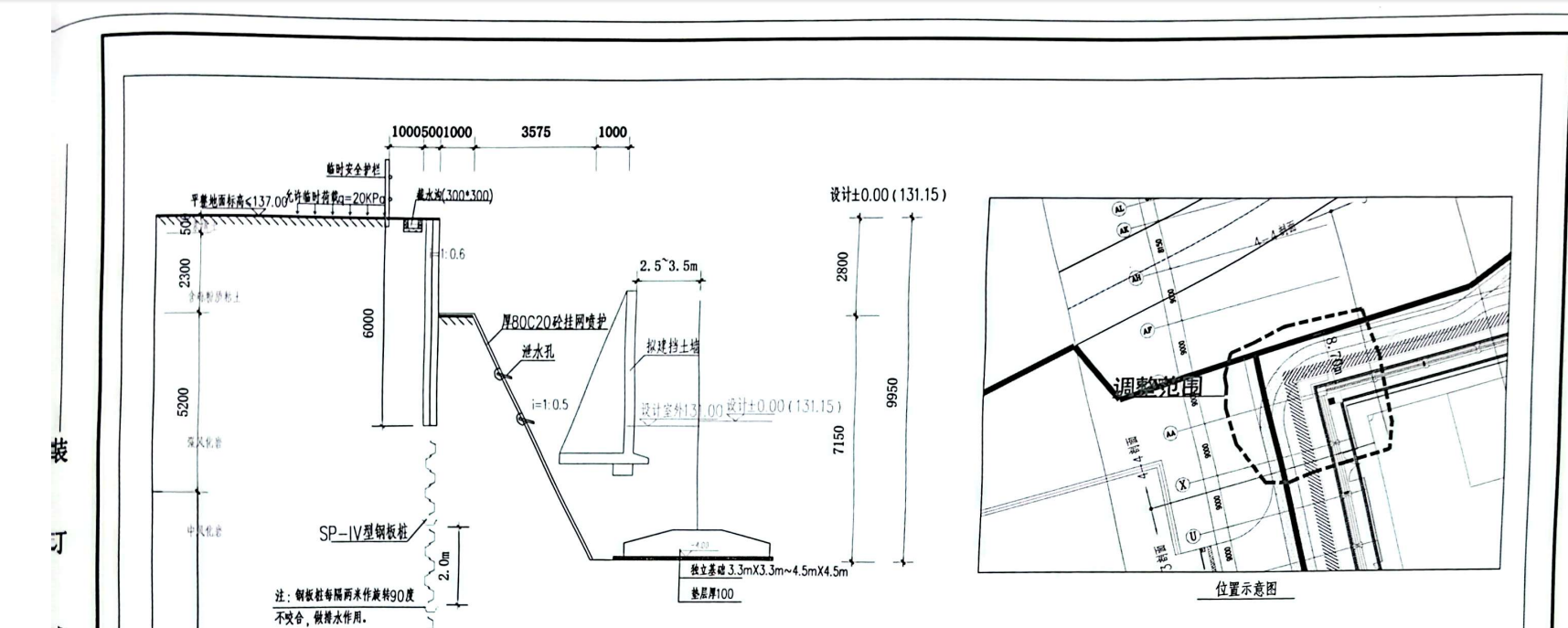
图1中粉色线是布置钢板桩位置;

钢板桩总长度=粉色线长度/0.4*6

0

评论0

请先
图集-24CWS001 建筑幕墙防火封堵系统应用
图集-24CWS001 建筑幕墙防火封堵系统应用
9分钟前 有人购买 去瞅瞅看
没有账号?注册  忘记密码?

社交账号快速登录

微信扫一扫关注
扫码关注后会自动登录网站