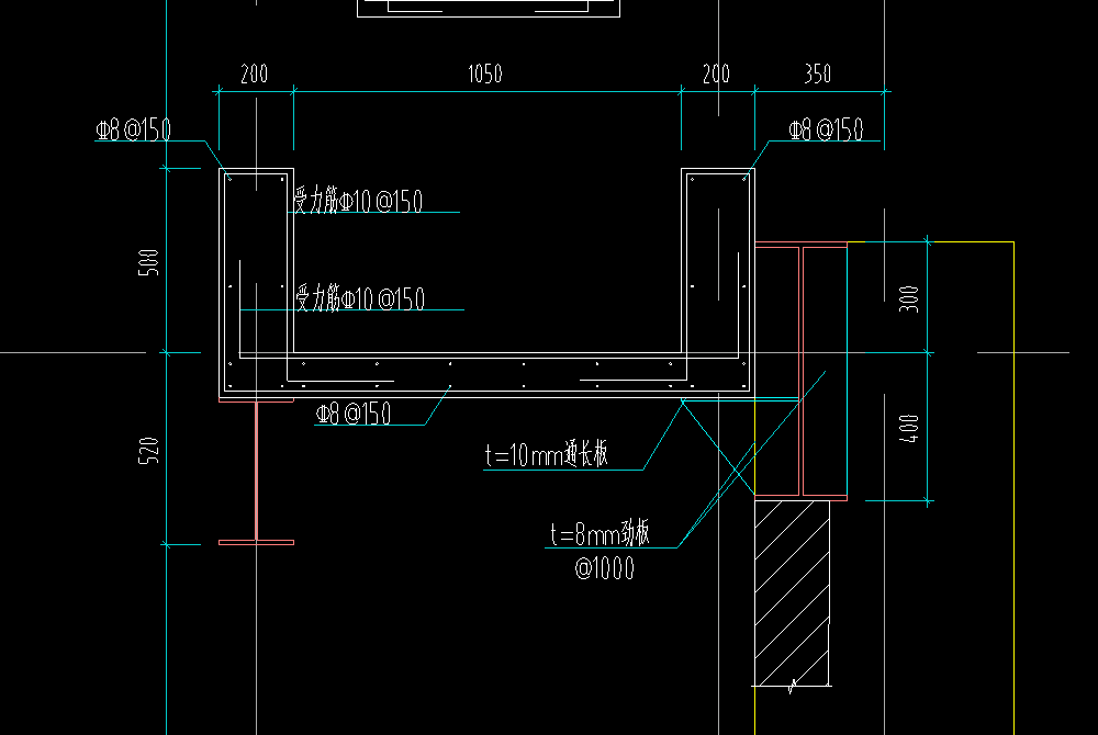
答疑:详图中的封边板下面这两个排水沟有吗,有的话是什么形状

提问网友:花生酱
提问日期:2025-10-15 21:42:18

形状封边答疑解惑


解答网友:GXZ

钻石专家

排水沟所处位置,你要看平面布置图的标注,如果这种排水沟在楼层层的部位,沟底用板定义布置,沟壁用剪力墙或栏板定义布置

0

评论0

请先
高清完整、正式版 DL/T 5814-2020 变电站、换流站土建工程施 质量验收规程(附条文说明).pdf
高清完整、正式版 DL/T 5814-2020 变电站、换流站土建工程施 质量验收规程(附条文说明).pdf
1分钟前 有人购买 去瞅瞅看
没有账号?注册  忘记密码?

社交账号快速登录

微信扫一扫关注
扫码关注后会自动登录网站