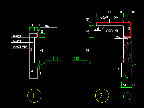
答疑:请问这种节点应该用什么画,及右边的节点下半部分怎么画

提问网友:dlqx123
提问日期:2025-10-15 17:25:14

答疑解惑


解答网友:河畔晨光

黄金专家

可采用墙和压顶定义布置,钢筋不符在编辑钢筋中调整锁定。

右图下是看说明砌体墙还是素混凝土墙。

0

评论0

请先
2025.08.28-西藏自治区《建设项目使用草原可行性报告编制规范》DB54_T 0493-2025
2025.08.28-西藏自治区《建设项目使用草原可行性报告编制规范》DB54_T 0493-2025
9分钟前 有人购买 去瞅瞅看
没有账号?注册  忘记密码?

社交账号快速登录

微信扫一扫关注
扫码关注后会自动登录网站