BIM
BIM吧
整体模型
族
其他资料
Dynamo
设计
方案
整体场景
单体模型
RHINO
施工图设计
结构
机电设计
材质渲染
D5素材
ENS素材专区
lumion素材
PS素材
规范图集
标准规范
行业图集
教程
视频
软件
Office
编程
造价
施工技术
计量计价
造价答疑
在线工具
管理
登录
注册
搜索
当前位置:
首页
造价
造价答疑
正文
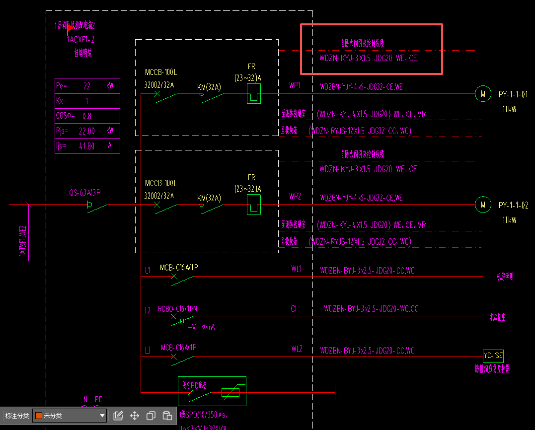
答疑:各位前辈,这个是在电气部分画还是在消防画
2分钟前
造价答疑
1
推广
提问网友:乱
提问日期:2025-10-15 15:19:56
解答网友:严友玲
黄金专家
一般是消防里
0
广联达
上一篇
答疑:这部分的墙体是什么构造,不理解,怎么进行绘制
下一篇
答疑:广东18定额
猜你喜欢
造价答疑
答疑:且上于等于5d,是附加区域长度还是间距,梁有c8-100/200,还要附加箍筋?
提问网友:小高提问日期:2025-10-15 15:46:17如何解答网友:可遇难求 ...
5秒前
0
造价答疑
答疑:请问暖通回风管的这个下翻是啥,是表示那一块有个风管立管50cm吗
提问网友:栗子提问日期:2025-10-15 15:46:46已采纳解答网友:0524是的
14秒前
0
造价答疑
答疑:老师们 防火门监控器和防火门监控主机是同一个东西吗
提问网友:0524提问日期:2025-10-15 15:47:03解答网友:无心 ...
19秒前
0
造价答疑
答疑:300KG的压力罐套哪个定额呢
提问网友:满小白提问日期:2025-10-15 15:49:142025-10-15 15:49:33 补充解答网友...
26秒前
0
造价答疑
答疑:陕西省楼承板材料单独认价,楼承板还套模板定额子目吗?
提问网友:2017,蜕变提问日期:2025-10-15 15:42:34陕西省楼承板材料单独认价,楼...
31秒前
0
造价答疑
答疑:这三块板还需要布置底筋吗
提问网友:王哈哈提问日期:2025-10-15 15:42:46解答网友:钢筋混凝土 ...
37秒前
0
评论
0
请先
登录
高清无水印 STS-C3-2013钢筋混凝土阀门井通用标准图.pdf
10分钟前 有人购买
去瞅瞅看
在线客服
升级VIP
返回顶部
没有账号?
注册
忘记密码?
社交账号快速登录
已有账号?
登录
社交账号快速登录
微信扫一扫关注
扫码关注后会自动登录网站
使用其他方式登录/注册
评论0