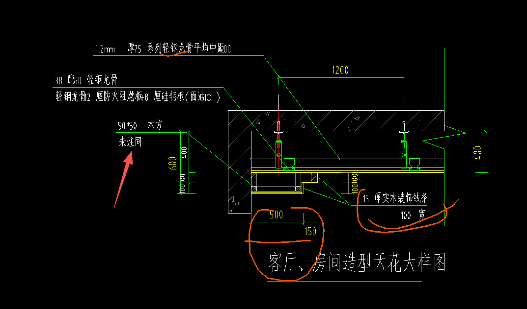
答疑:50*50木方套哪个定额比较合适?

提问网友:cong
提问日期:2025-10-15 15:08:33

套哪个定额

定额

答疑解惑


已采纳
解答网友:可遇难求

钻石专家

套吊顶 木龙骨。

解答网友:天下有雪

黄金专家

方木龙骨合适

0

评论0

请先
高清、正式版 DL/T 5032-2018 火力发电厂总图运输设计规范(代替DL/T 5032-2005)附条文说明.pdf
高清、正式版 DL/T 5032-2018 火力发电厂总图运输设计规范(代替DL/T 5032-2005)附条文说明.pdf
9分钟前 有人购买 去瞅瞅看
没有账号?注册  忘记密码?

社交账号快速登录

微信扫一扫关注
扫码关注后会自动登录网站