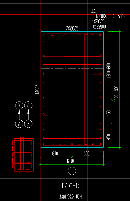
答疑:老师们这种异形柱用什么构建能绘制出来,能让钢筋正确?

提问网友:无涯
提问日期:2025-10-13 11:09:12

异形柱

异形


已采纳
解答网友:钢筋撑起半边天

钻石专家

手工计算准确  按平均的宽度考虑处理,

解答网友:石姐

铂金专家

建模没有合适的参数的

建议自己编辑计算

解答网友:十年工程人

无法建模  表格算量手算吧

0

评论0

请先
DB32/T 4401-2022 综合医院建筑设计标准.pdf
DB32/T 4401-2022 综合医院建筑设计标准.pdf
3分钟前 有人购买 去瞅瞅看
没有账号?注册  忘记密码?

社交账号快速登录

微信扫一扫关注
扫码关注后会自动登录网站