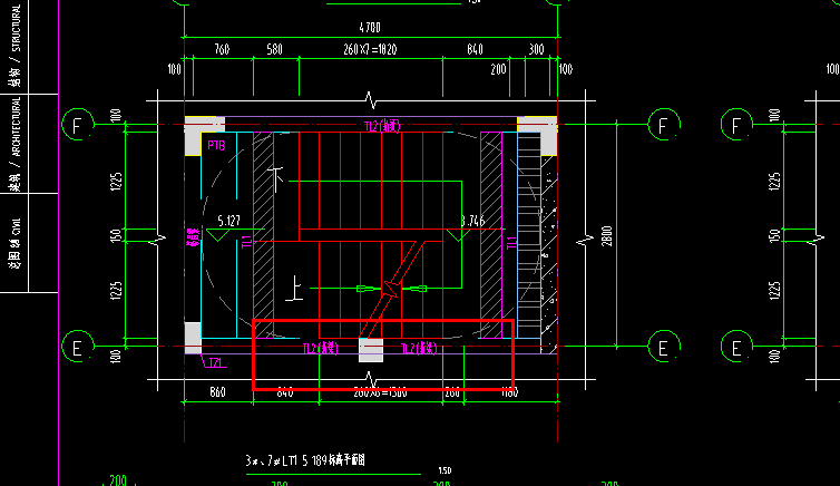
答疑:楼梯台阶首层和最上面一层与梯段高度不一致该怎么布置?楼梯旁边的折梁能一起定义吗?

提问网友:534
提问日期:2025-10-13 10:40:24

折梁首层


解答网友:河畔晨光

黄金专家

按平均高度设置

解答网友:杨华

白银专家

用总高度/踏步数量=平均高度;

解答网友:陈工

钻石专家

可以取平均数计算,也可以分别计算的方法处理。

0

评论0

请先
《电力工程项目建设用地指标》建标201078号.pdf
《电力工程项目建设用地指标》建标201078号.pdf
5分钟前 有人购买 去瞅瞅看
没有账号?注册  忘记密码?

社交账号快速登录

微信扫一扫关注
扫码关注后会自动登录网站