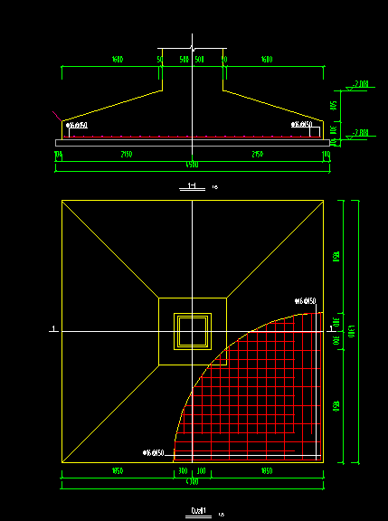
答疑:请问基础钢筋这么布置在软件中如何设置

提问网友:小手冰凉
提问日期:2025-10-13 09:13:49

基础钢筋


解答网友:钢筋撑起半边天

钻石专家

钢筋软件里自动考虑计算  只要信息定义正确就可以了

0

评论0

请先
带书签、无水印 21K201 管道阀门选用与安装图集(替代07K201)
带书签、无水印 21K201 管道阀门选用与安装图集(替代07K201)
6分钟前 有人购买 去瞅瞅看
没有账号?注册  忘记密码?

社交账号快速登录

微信扫一扫关注
扫码关注后会自动登录网站