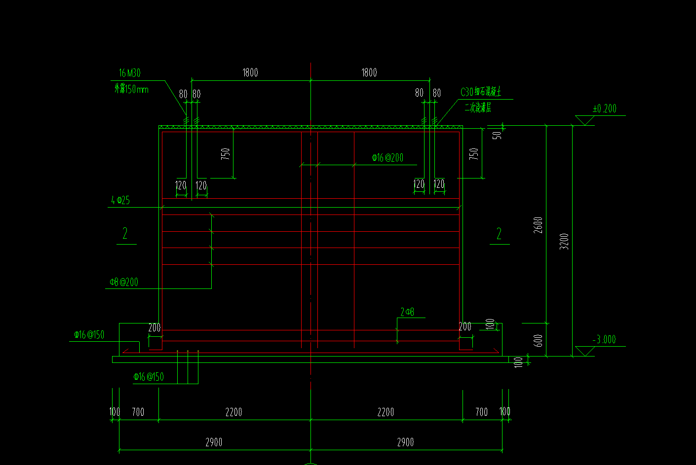
答疑:请问这个基础是用三台画还是柱墩画

提问网友:日暮途远
提问日期:2025-10-12 22:23:58

柱墩


解答网友:GXZ

钻石专家

分别定义独立基础、柱墩进行布置

解答网友:nh

钻石专家

底用独立基础,垂直用上柱墩

0

评论0

请先
南方电网业扩典设V2.1全套CAD打包-xycost.com,全套1.5G
南方电网业扩典设V2.1全套CAD打包-xycost.com,全套1.5G
刚刚 有人购买 去瞅瞅看
没有账号?注册  忘记密码?

社交账号快速登录

微信扫一扫关注
扫码关注后会自动登录网站