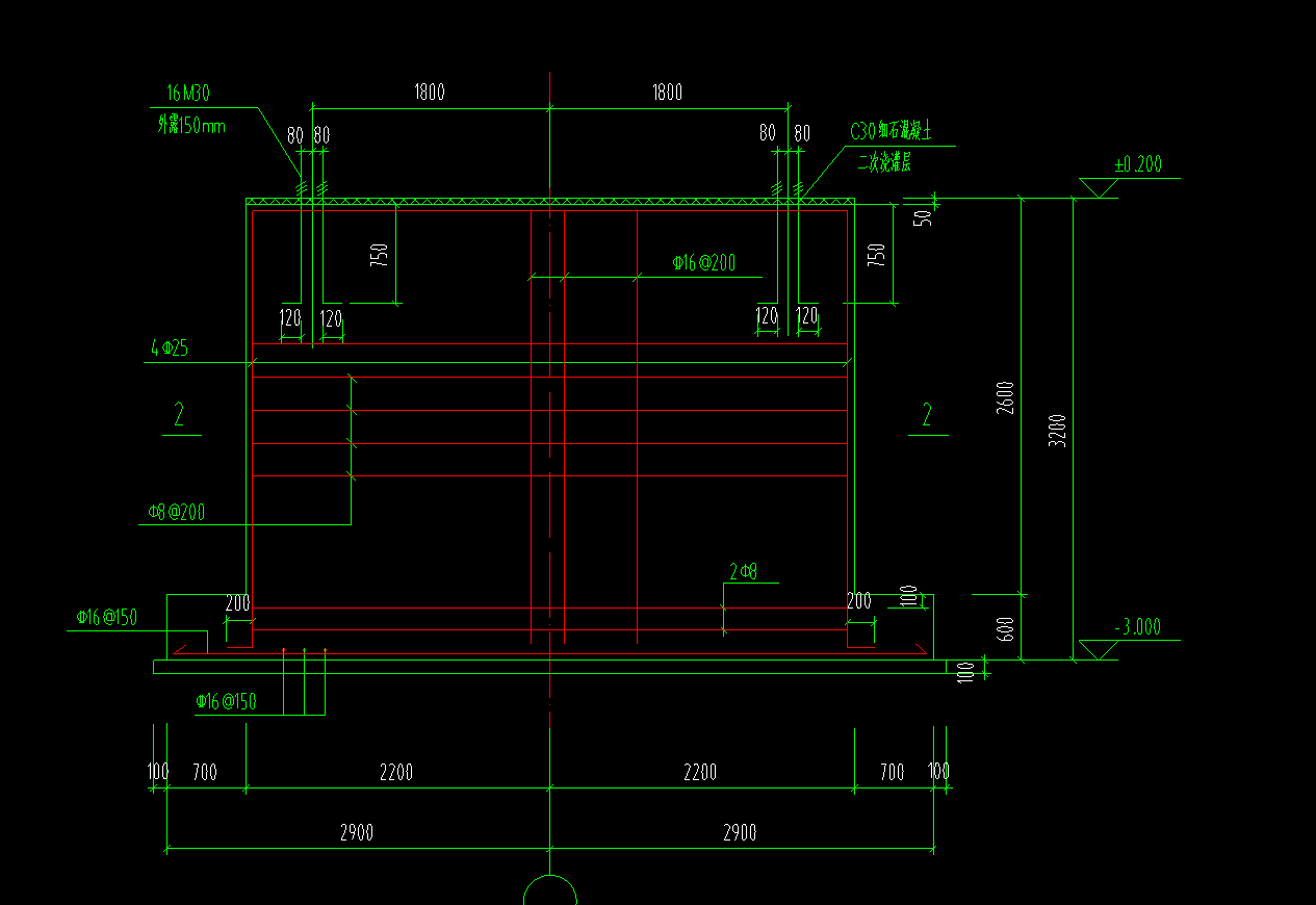
答疑:图示独立基础里面哪个是短边加强筋?

提问网友:日暮途远
提问日期:2025-10-12 22:06:40

独立基础


解答网友:GXZ

钻石专家

截图并没有显示有短边加强钢筋的标注

解答网友:华睿工作室

白银专家

1、基础600厚   配筋C16@150     

2、基础中不存在加强筋

0

评论0

请先
2025.07.10-农业农村部《农田建设项目概算编制规定》(2025年6月版)
2025.07.10-农业农村部《农田建设项目概算编制规定》(2025年6月版)
10分钟前 有人购买 去瞅瞅看
没有账号?注册  忘记密码?

社交账号快速登录

微信扫一扫关注
扫码关注后会自动登录网站