答疑:图中集水坑,怎么画?请高手赐教

提问网友:墨兮
提问日期:2025-10-09 20:30:25

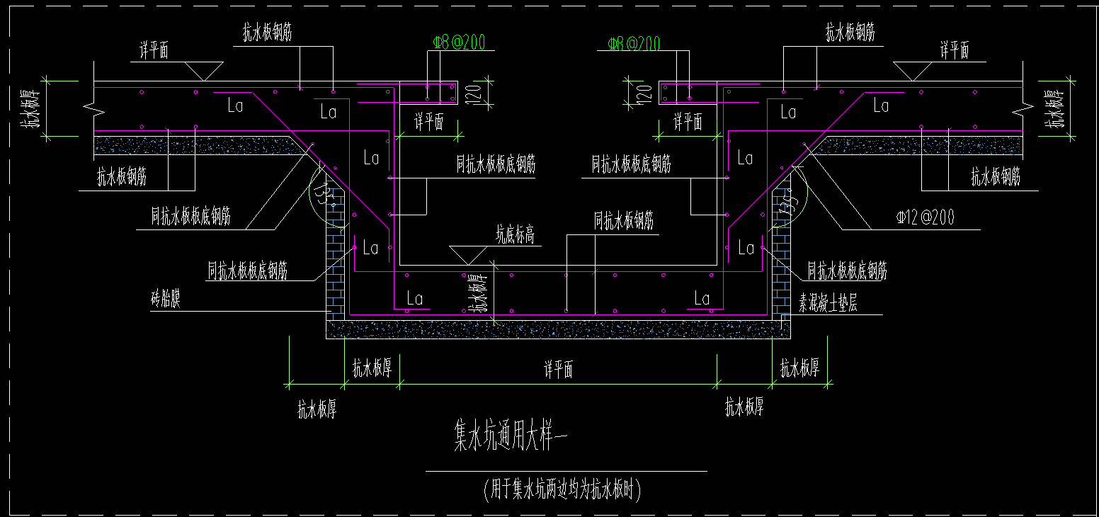
集水坑


解答网友:钢筋撑起半边天

钻石专家

按90度考虑定义集水坑  上边的软角用自定义线处理一下就好了

这种集水坑软件里目前不能直接处理好

0

评论0

请先
铁路隧道全工序机械化设计施工技术规程(Q/CR 9265-2025)2025.5.13初排(无水印).pdf
铁路隧道全工序机械化设计施工技术规程(Q/CR 9265-2025)2025.5.13初排(无水印).pdf
1分钟前 有人购买 去瞅瞅看
没有账号?注册  忘记密码?

社交账号快速登录

微信扫一扫关注
扫码关注后会自动登录网站