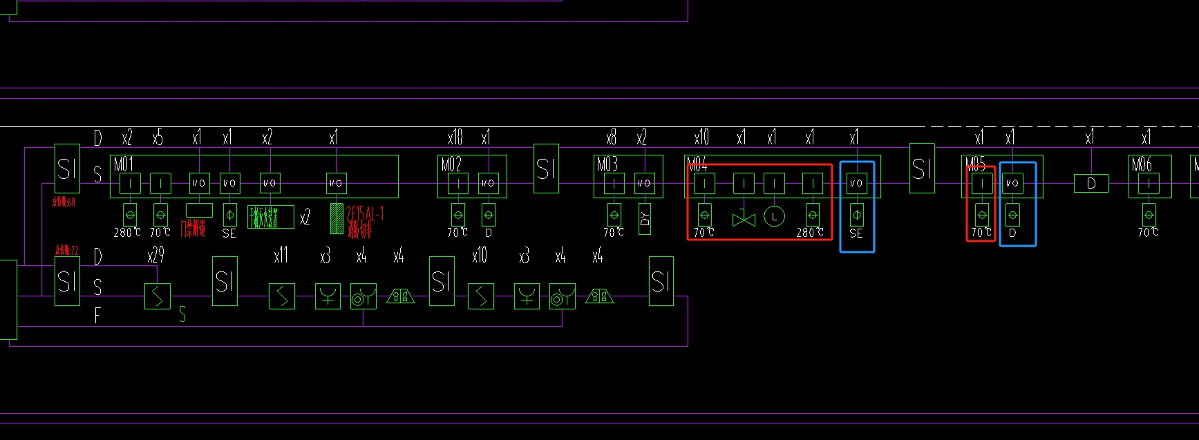
答疑:老师们 是不是红框内的只接一根信号线 蓝框内的接一根信号线和电源线

提问网友:0524
提问日期:2025-10-09 19:09:23

框内


解答网友:钢筋撑起半边天

钻石专家

是的

解答网友:幸福像花一样

钻石专家

是的

0

评论0

请先
DZ/T  0071-2025 地面高精度磁测技术规程.pdf
DZ/T 0071-2025 地面高精度磁测技术规程.pdf
9分钟前 有人购买 去瞅瞅看
没有账号?注册  忘记密码?

社交账号快速登录

微信扫一扫关注
扫码关注后会自动登录网站