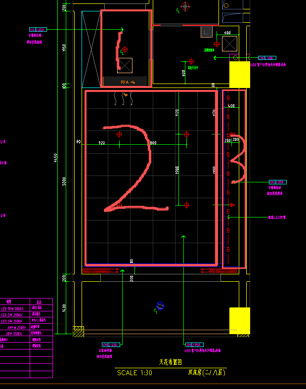
答疑:1.3石膏板,标高2.25,2为纤维板吊顶,标高2.85,三块区域是否合并计算

提问网友:剥了洋葱
提问日期:2025-10-09 17:31:13

吊顶


解答网友:风轻云淡

白银专家

工艺做法材料相同的合并计算,不同的需要分开

0

评论0

请先
GB51222-2017 城镇内涝防治技术规范(附条文说明)
GB51222-2017 城镇内涝防治技术规范(附条文说明)
8分钟前 有人购买 去瞅瞅看
没有账号?注册  忘记密码?

社交账号快速登录

微信扫一扫关注
扫码关注后会自动登录网站