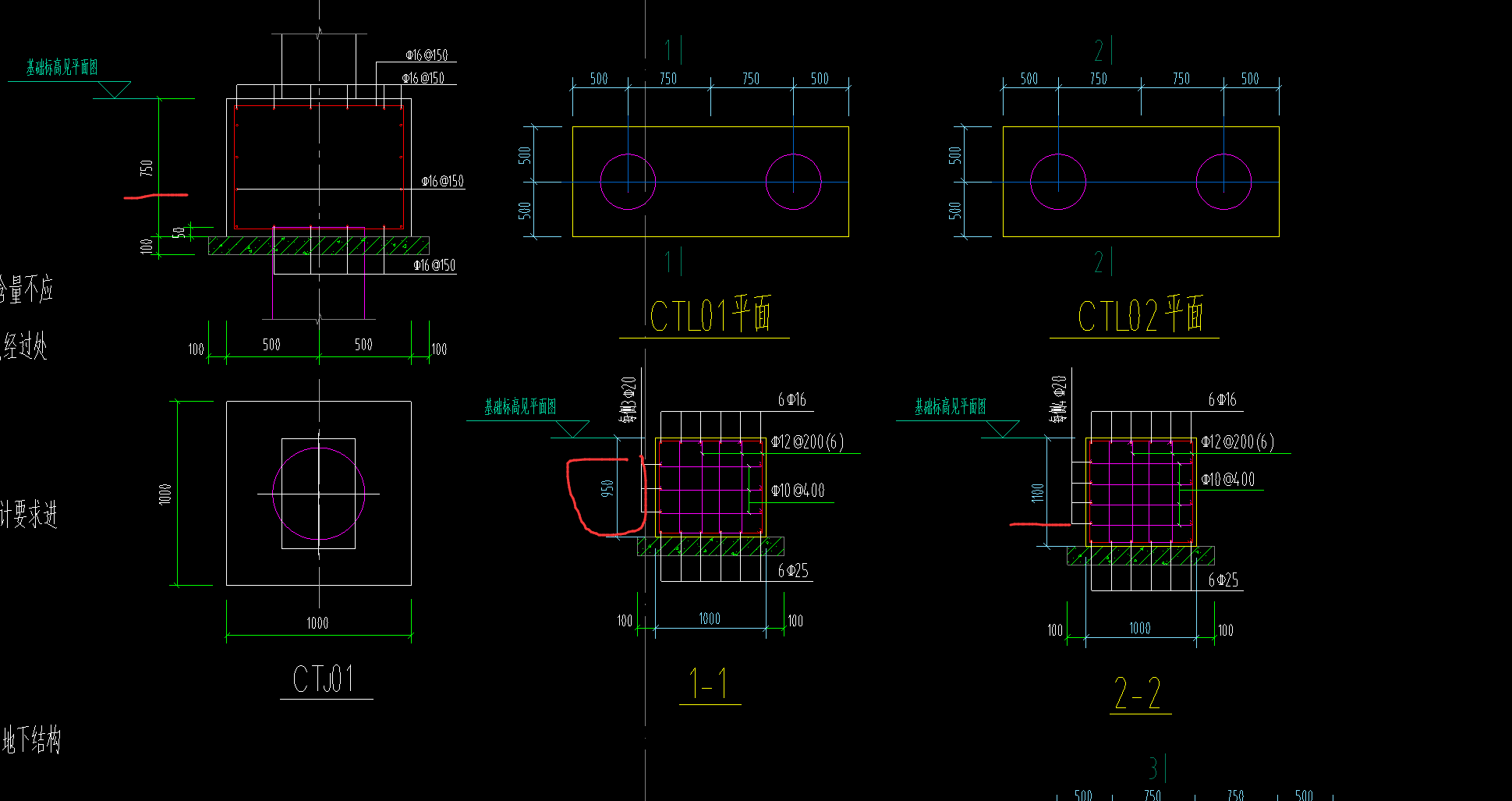
答疑:这个承台 基础层的层高是多少?

提问网友:helar
提问日期:2025-10-09 11:35:10

基础层


解答网友:石姐

铂金专家

层高

这里看不出的

解答网友:阿古木力

黄金专家

基础层层高不需要怎么设置的,哪种承台的数量多一点,就按哪种承台的高度

解答网友:钢筋撑起半边天

钻石专家

按基础较深的厚度考虑计算

解答网友:星霜荏苒

钻石专家

基础高度都不一样,基础层层高按软件默认就可以,单独修改基础的底标高

0

评论0

请先
DBJ51/T 263-2024 四川省基于保持正常使用功能的建筑隔震减震工程设计标准.pdf
DBJ51/T 263-2024 四川省基于保持正常使用功能的建筑隔震减震工程设计标准.pdf
5分钟前 有人购买 去瞅瞅看
没有账号?注册  忘记密码?

社交账号快速登录

微信扫一扫关注
扫码关注后会自动登录网站