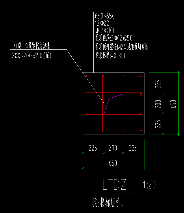
答疑:基础短柱用什么定义绘制,预留抗剪键槽怎么设置

提问网友:daqimudiao
提问日期:2025-10-09 07:45:04

短柱基础短柱


已采纳
解答网友:钢筋撑起半边天

钻石专家

用柱子处理,中间空洞手工扣除

解答网友:大家广联

钻石专家

用框架柱画

不用设置  小于0.3m2的孔洞不扣   模板也不增加

解答网友:SOFTICE

黄金专家

建柱构件

0

评论0

请先
BIAD建筑设计深度图示(上)(下)以及BIAD设计文件编制深度规定(第二版),共三本高清PDF
BIAD建筑设计深度图示(上)(下)以及BIAD设计文件编制深度规定(第二版),共三本高清PDF
8分钟前 有人购买 去瞅瞅看
没有账号?注册  忘记密码?

社交账号快速登录

微信扫一扫关注
扫码关注后会自动登录网站