答疑:加腋变截面梁怎么建模

提问网友:木
提问日期:2025-10-08 10:41:06

加腋变截面


已采纳
解答网友:杨华

白银专家

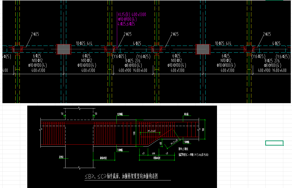
打断为3段,设置截面400*1300+400*1300/900+400*900三个截面,合并;

解答网友:陈工

钻石专家

方法如一:

答疑解惑

广联达服务新干线

建筑行业快速问答平台-答疑解惑

加腋

0

评论0

请先
第五元素 全套识图课件-钢结构、人防、水电、造价等,应版权人要求,不得作商业用途,只可做个人学习使用。
第五元素 全套识图课件-钢结构、人防、水电、造价等,应版权人要求,不得作商业用途,只可做个人学习使用。
3分钟前 有人购买 去瞅瞅看
没有账号?注册  忘记密码?

社交账号快速登录

微信扫一扫关注
扫码关注后会自动登录网站