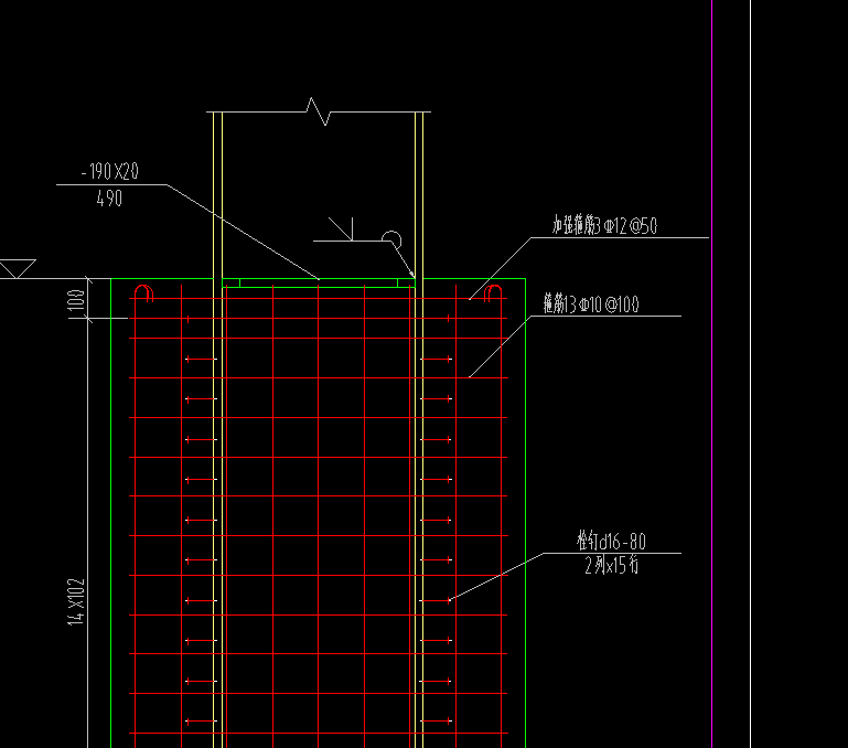
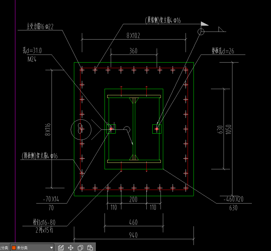
答疑:柱钢筋这样设置可以吗

提问网友:Ccccc
提问日期:2025-10-08 10:19:37

柱钢筋答疑解惑广联达服务新干线


解答网友:大家广联

钻石专家

不行,在其他箍筋中 增加

解答网友:杨华

白银专家

用型钢砼柱定义;

山东省

解答网友:nh

钻石专家

用型钢柱设置

0

评论0

请先
NB∕T 11777-2025 海上风电场工程吸力桩基础勘察规程
NB∕T 11777-2025 海上风电场工程吸力桩基础勘察规程
10分钟前 有人购买 去瞅瞅看
没有账号?注册  忘记密码?

社交账号快速登录

微信扫一扫关注
扫码关注后会自动登录网站