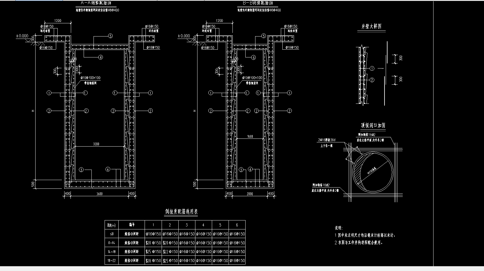
答疑:请问下面的钢筋怎么计算工程量?

提问网友:明初
提问日期:2025-10-07 18:52:55

计算工程量


已采纳
解答网友:陈工

钻石专家

底用筏板定义布置(钢筋)。

壁用剪力墙定义布置的方法处理。

顶用板定义布置的方法处理。

0

评论0

请先
22J403-1楼梯 栏杆 栏板(一)PDF下载
22J403-1楼梯 栏杆 栏板(一)PDF下载
8分钟前 有人购买 去瞅瞅看
没有账号?注册  忘记密码?

社交账号快速登录

微信扫一扫关注
扫码关注后会自动登录网站