答疑:结构大样与建筑大样的压顶不一致怎么处理

提问网友:何胜
提问日期:2025-10-07 12:53:09

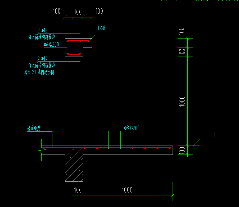
压顶不一致


已采纳
解答网友:xagcc

钻石专家

结构图做压顶

解答网友:SOFTICE

黄金专家

联系设计确认

0

评论0

请先
QGDW 12480-2024 海底电力电缆状态检修试验规程
QGDW 12480-2024 海底电力电缆状态检修试验规程
刚刚 有人购买 去瞅瞅看
没有账号?注册  忘记密码?

社交账号快速登录

微信扫一扫关注
扫码关注后会自动登录网站