提问网友:TT
提问日期:2025-10-07 10:31:17
解答网友:欢乐心中飞雪
钻石专家
解答网友:杨华
白银专家
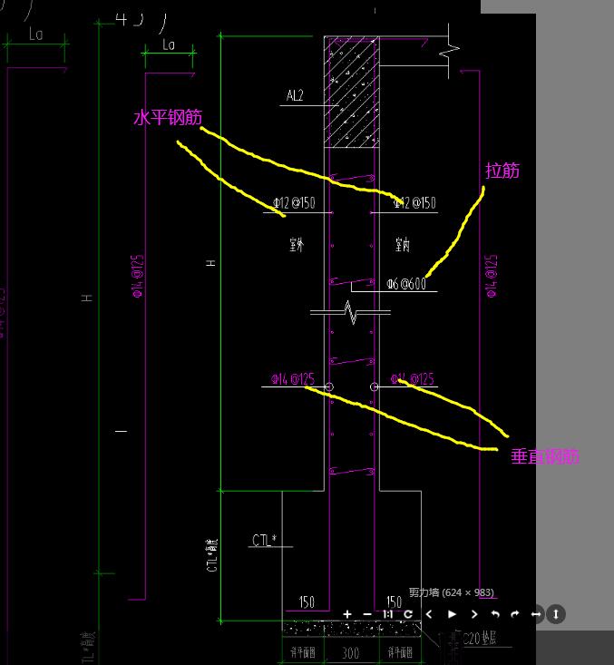
(2)C14@125垂直筋,(2)C12@150水平筋,C6@600拉筋;
解答网友:GXZ
钻石专家
C14@125是垂直钢筋,C12@150是水平钢筋,C6@600是拉筋
解答网友:钢筋撑起半边天
钻石专家
解答网友:陈工
钻石专家
分别为 :垂直钢筋(双排的),水平钢筋,(双排的),拉筋,
解答网友:nh
钻石专家
提问网友:TT
提问日期:2025-10-07 10:31:17
解答网友:欢乐心中飞雪
钻石专家
解答网友:杨华
白银专家
(2)C14@125垂直筋,(2)C12@150水平筋,C6@600拉筋;
解答网友:GXZ
钻石专家
C14@125是垂直钢筋,C12@150是水平钢筋,C6@600是拉筋
解答网友:钢筋撑起半边天
钻石专家
解答网友:陈工
钻石专家
分别为 :垂直钢筋(双排的),水平钢筋,(双排的),拉筋,
解答网友:nh
钻石专家
评论0