答疑:问下各位大佬这种不等边的四棱锥独立基础怎么画?

提问网友:ci
提问日期:2025-10-06 13:44:43

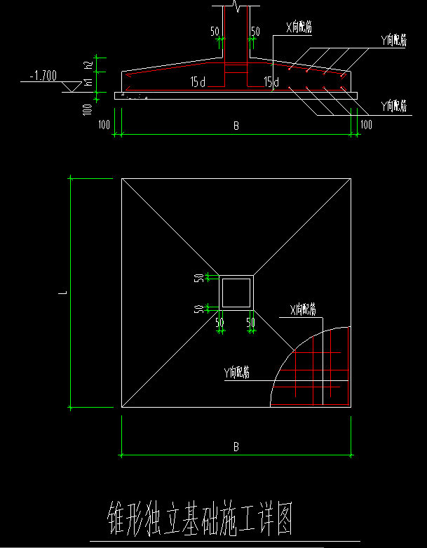
用独基定义画不了面筋,用承台定义只能画等边的四棱锥承台独基独立基础怎么画


已采纳
解答网友:开拓者

筏板做边坡

答疑解惑

广联达服务新干线

解答网友:雪花飘 飘

铂金专家

建筑行业快速问答平台-答疑解惑独基定义,底筋和面筋用/分开

0

评论0

请先
高清OCR版17J008 挡土墙(重力式、衡重式、悬臂式) 无水印
高清OCR版17J008 挡土墙(重力式、衡重式、悬臂式) 无水印
1分钟前 有人购买 去瞅瞅看
没有账号?注册  忘记密码?

社交账号快速登录

微信扫一扫关注
扫码关注后会自动登录网站