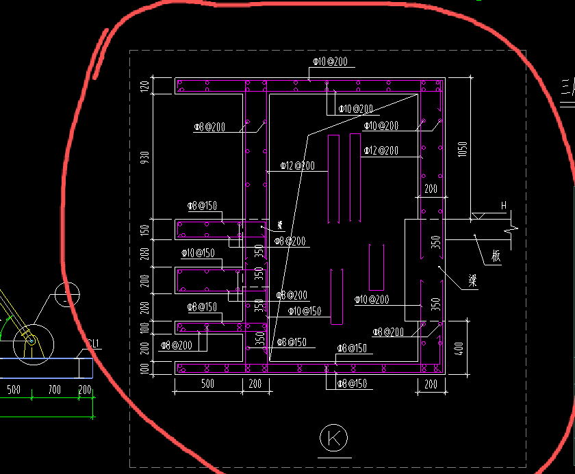
答疑:大哥们这个节点怎么看呀

提问网友:ggg
提问日期:2025-10-06 02:39:39

节点怎么看


解答网友:大家广联

钻石专家

都可以用板+剪力墙(或挑檐画)

解答网友:华睿工作室

白银专家

梁上下均用墙体,其余均用板

板采用分层布置

解答网友:雪花飘 飘

铂金专家

剪力墙+板绘制

梁上下用剪力墙封闭的空间

解答网友:nh

钻石专家

水平的用板,垂直的用梁及剪力墙分别设置

0

评论0

请先
高清完整版 XJJ 081-2017 新疆建设工程资料管理规程(附条文说明)
高清完整版 XJJ 081-2017 新疆建设工程资料管理规程(附条文说明)
3分钟前 有人购买 去瞅瞅看
没有账号?注册  忘记密码?

社交账号快速登录

微信扫一扫关注
扫码关注后会自动登录网站