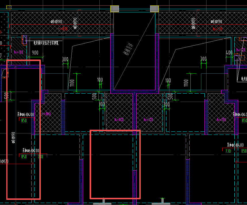
答疑:请问这样的板钢筋线;左边需要布置面筋吗;右边这块需要都布置吗?

提问网友:CC
提问日期:2025-10-05 23:10:52

钢筋线面筋


解答网友:GXZ

钻石专家

面筋对设计说明进行定义布置,平面标注有附加也是需要定义布置的

解答网友:SOFTICE

黄金专家

都需要布置X、Y向面筋 ,板厚不同间距不同

解答网友:nh

钻石专家

要的,是双层双向,负筋是附加的答疑解惑

0

评论0

请先
Q/GDW 10393.1-2024 变电站设计规范 第1部分:35kV变电站.pdf
Q/GDW 10393.1-2024 变电站设计规范 第1部分:35kV变电站.pdf
8分钟前 有人购买 去瞅瞅看
没有账号?注册  忘记密码?

社交账号快速登录

微信扫一扫关注
扫码关注后会自动登录网站