BIM
BIM吧
整体模型
族
其他资料
Dynamo
设计
方案
整体场景
单体模型
RHINO
施工图设计
结构
机电设计
材质渲染
D5素材
ENS素材专区
lumion素材
PS素材
规范图集
标准规范
行业图集
教程
视频
软件
Office
编程
造价
施工技术
计量计价
造价答疑
在线工具
管理
登录
注册
搜索
当前位置:
首页
造价
造价答疑
正文
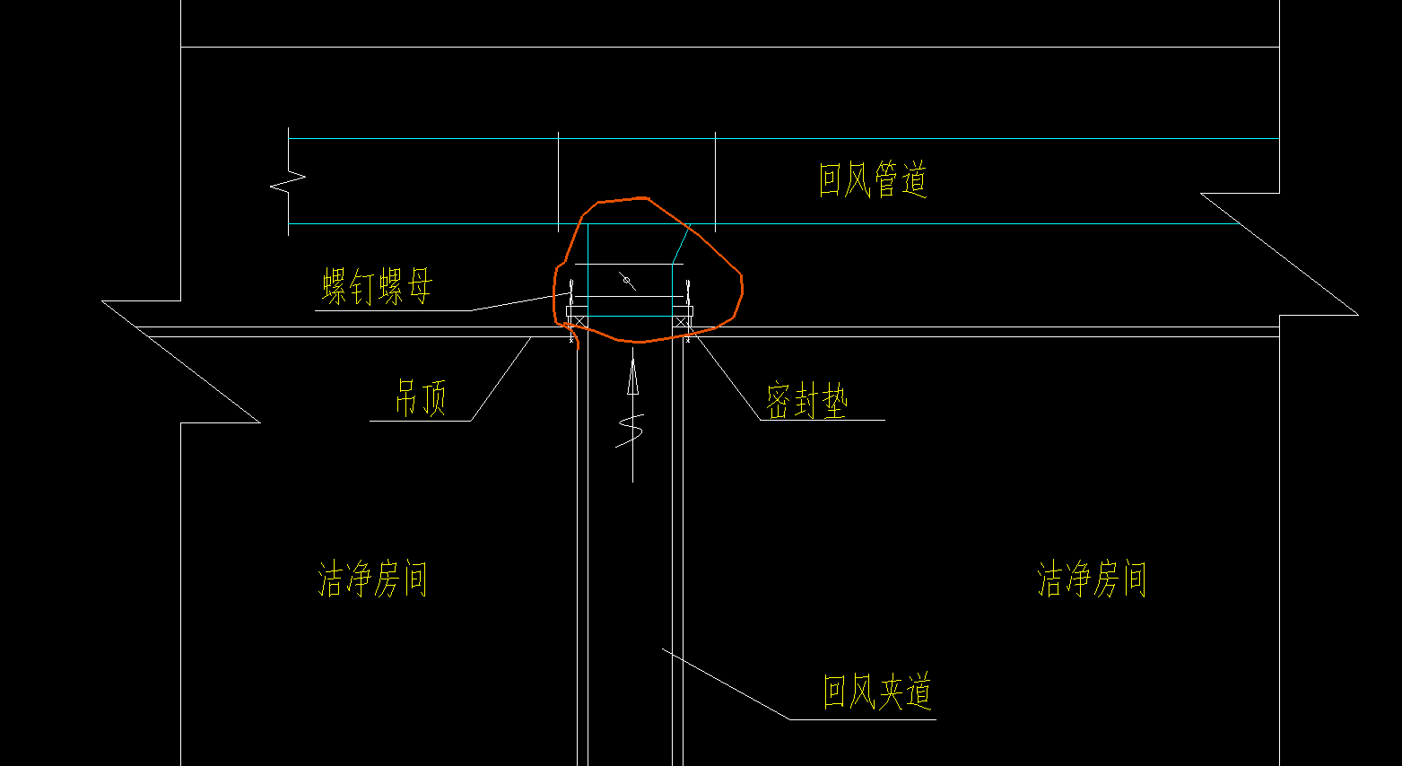
答疑:这个是蝶阀吗?
2小时前
造价答疑
1
推广
提问网友:煤球
提问日期:2025-10-05 21:45:49
解答网友:冰临城下
黄金专家
风管蝶阀
解答网友:大海
钻石专家
是蝶阀(风阀)
0
上一篇
答疑:污水管PE带钢带 套什么定额
下一篇
QGDW 12444-2024 架空输电线路红外检测导则
猜你喜欢
造价答疑
答疑:为什么筏板的节点是暗的,改不了
提问网友:嗯哼提问日期:2025-10-08 09:03:13解答网友:阿古木力 ...
1分钟前
0
造价答疑
答疑:辽宁各位大神请问一下,电线进入吊顶预留多少,这定额有规定吗,还是得需要签证
提问网友:糖糖提问日期:2025-10-08 09:09:24已采纳解答网友:xagcc ...
1分钟前
0
造价答疑
答疑:GCCP7最新内蒙进度计量中工程量小数点怎么调整?
提问网友:框架柱提问日期:2025-10-08 08:46:302025-10-08 08:58:24 补充进度计量...
1分钟前
0
造价答疑
答疑:请教老师!监控设备保护箱,套哪个定额?陕西省西安市
提问网友:快乐心情提问日期:2025-10-08 08:42:46解答网友:大家广联 ...
2分钟前
0
造价答疑
答疑:梁和柱混凝土标号不同,柱子c55梁是c30。
提问网友:行云流水提问日期:2025-10-08 08:18:26梁和柱混凝土标号不同,柱子c55...
2分钟前
0
造价答疑
答疑:GCCP6.0报表明细合价对不上实际合价
提问网友:羲皇稚鸠提问日期:2025-10-08 00:36:52报表价格和分部分项价格对不上是...
3分钟前
0
评论
0
请先
登录
T/CECS 990-2022 既有建筑幕墙安全检查技术规程.pdf
8分钟前 有人购买
去瞅瞅看
在线客服
升级VIP
返回顶部
没有账号?
注册
忘记密码?
社交账号快速登录
已有账号?
登录
社交账号快速登录
微信扫一扫关注
扫码关注后会自动登录网站
使用其他方式登录/注册
评论0