提问网友:Soobin
提问日期:2025-10-05 10:45:24
解答网友:钢筋撑起半边天
钻石专家
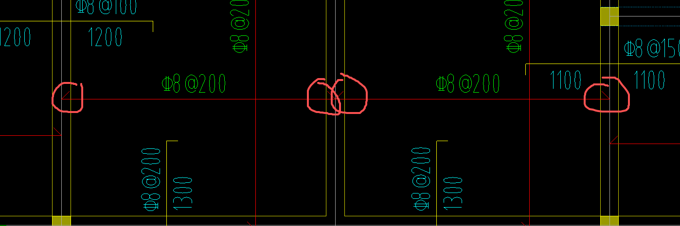
左右跨配筋相同时是可以拉通布置的
解答网友:GXZ
钻石专家
设计要求是分不同板块进行布置,不同板块与通常布置是有所差异的,因为板钢筋的锚固是按5d至少过梁中,这与梁的宽度及板钢筋的直径有关系,建议按设计要求定义布置
解答网友:杨华
白银专家
尽量通长布置;
解答网友:星霜荏苒
钻石专家
底筋,可以多板布置
解答网友:雪花飘 飘
铂金专家
可以,多板布置
提问网友:Soobin
提问日期:2025-10-05 10:45:24
解答网友:钢筋撑起半边天
钻石专家
左右跨配筋相同时是可以拉通布置的
解答网友:GXZ
钻石专家
设计要求是分不同板块进行布置,不同板块与通常布置是有所差异的,因为板钢筋的锚固是按5d至少过梁中,这与梁的宽度及板钢筋的直径有关系,建议按设计要求定义布置
解答网友:杨华
白银专家
尽量通长布置;
解答网友:星霜荏苒
钻石专家
底筋,可以多板布置
解答网友:雪花飘 飘
铂金专家
可以,多板布置
评论0