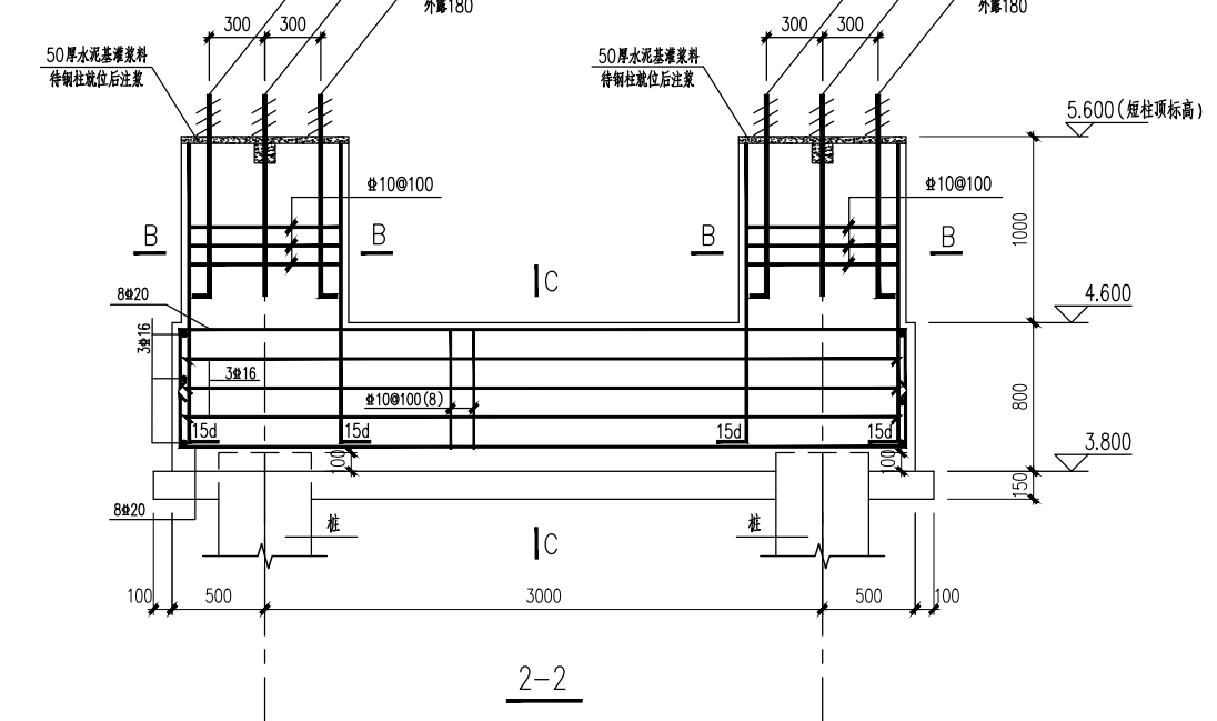
答疑:请问,基础上部钢筋保护层为50厚,图中已间隔100厚还需要再增加50厚吗

提问网友:匿名用户
提问日期:2025-10-04 15:23:13

保护层


解答网友:钢筋撑起半边天

钻石专家

只有下部是100,上边没有要求是100的保护层  下边100是到钢筋下皮了

解答网友:杨华

白银专家

不需要;

0

评论0

请先
2023年输变电工程环境监测及环境保护验收费、水土保持监测及验收费用标准
2023年输变电工程环境监测及环境保护验收费、水土保持监测及验收费用标准
5分钟前 有人购买 去瞅瞅看
没有账号?注册  忘记密码?

社交账号快速登录

微信扫一扫关注
扫码关注后会自动登录网站