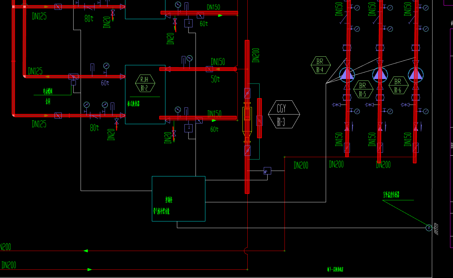
答疑:地下室空调水系统图黄色长条状的这是什么设备

提问网友:敲
提问日期:2025-10-04 08:39:53

系统图

2025-10-04 08:50:02 补充

空调水


解答网友:xagcc

钻石专家

没有看到黄色长条状的呀

解答网友:大海

钻石专家

截图二、除垢仪

0

评论0

请先
2018年《北京市建设工程工期定额》和2018年《北京市房屋修缮工程工期定额》及配套管理文件实施要点和操作指南,共3册PDF下载
2018年《北京市建设工程工期定额》和2018年《北京市房屋修缮工程工期定额》及配套管理文件实施要点和操作指南,共3册PDF下载
6分钟前 有人购买 去瞅瞅看
没有账号?注册  忘记密码?

社交账号快速登录

微信扫一扫关注
扫码关注后会自动登录网站