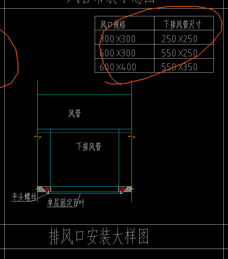
答疑:这个风口下接管是按表的,还是按风口的大小?

提问网友:煤球
提问日期:2025-10-04 06:59:47

风口答疑解惑


解答网友:zhangy

黄金专家

按表格中的尺寸。

解答网友:天山雪豹

黄金专家

按接管的尺寸

解答网友:幸福像花一样

钻石专家

下接管是按表的执行

解答网友:大海

钻石专家

按“下接风管尺寸”

0

评论0

请先
22J403-1楼梯 栏杆 栏板(一)PDF下载
22J403-1楼梯 栏杆 栏板(一)PDF下载
刚刚 有人购买 去瞅瞅看
没有账号?注册  忘记密码?

社交账号快速登录

微信扫一扫关注
扫码关注后会自动登录网站