答疑:柱墙加强筋怎么设置

提问网友:会采纳点赞
提问日期:2025-10-03 16:53:59

手算

柱墙加强筋怎么设置,会手算,但是需要设置,求指点

2025-10-03 17:05:16 补充

钢筋的单边长度为每一边柱子之间的净距离三分之一,每段净距离长度大小不同,这样设置不太方便,有没有软件自动计算那种


已采纳
解答网友:SOFTICE

黄金专家

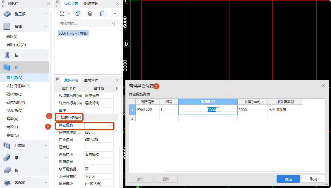
其它钢筋,水平加强筋单边

0

评论0

请先
新22J01 工程做法-新疆维吾尔自治区工程建设标准设计-2022系列建筑标准设计图集
新22J01 工程做法-新疆维吾尔自治区工程建设标准设计-2022系列建筑标准设计图集
刚刚 有人购买 去瞅瞅看
没有账号?注册  忘记密码?

社交账号快速登录

微信扫一扫关注
扫码关注后会自动登录网站