答疑:梁板节点绘制

提问网友:紫菜蛋花汤
提问日期:2025-10-03 10:30:40

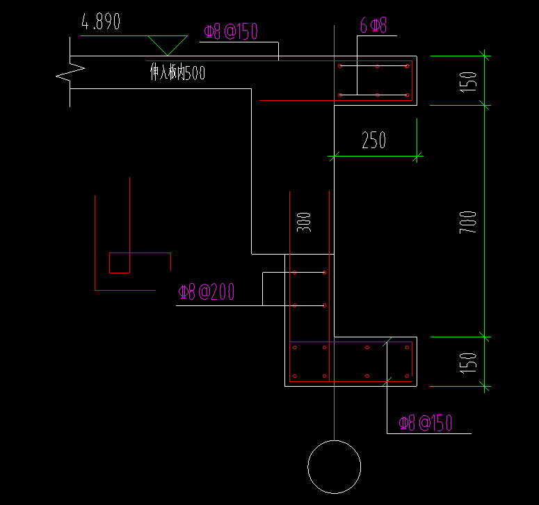
各位大佬,请问这个节点如何绘制,需要分两个构件绘制还是用挑檐绘制,用挑檐的话钢筋如何设置

构件绘制


解答网友:杨华

白银专家

用异形挑檐定义,编辑钢筋;

解答网友:欢乐心中飞雪

钻石专家

可以用一个挑檐绘制,也可以用墙+挑檐组合绘制

挑檐内钢筋可以截面编辑输入钢筋信息的

解答网友:雪花飘 飘

铂金专家

用异形挑檐定义,

截面编辑绘制钢筋

0

评论0

请先
JGJ/T251-2011 建筑钢结构防腐蚀技术规程
JGJ/T251-2011 建筑钢结构防腐蚀技术规程
8分钟前 有人购买 去瞅瞅看
没有账号?注册  忘记密码?

社交账号快速登录

微信扫一扫关注
扫码关注后会自动登录网站