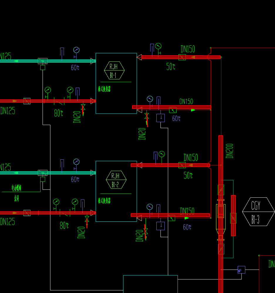
答疑:这些空调水管旁边的度数 是什么意思

提问网友:敲
提问日期:2025-10-03 02:19:55

度数


解答网友:大海

钻石专家

(板式换热器)热水循环管内热水的温度。

解答网友:幸福像花一样

钻石专家

是板式换热器进水和回水的温度

0

评论0

请先
功能强大还全免费,Revit 年度神级插件就是它了!更新到DiRoots.One最新2024中文版
功能强大还全免费,Revit 年度神级插件就是它了!更新到DiRoots.One最新2024中文版
9分钟前 有人购买 去瞅瞅看
没有账号?注册  忘记密码?

社交账号快速登录

微信扫一扫关注
扫码关注后会自动登录网站