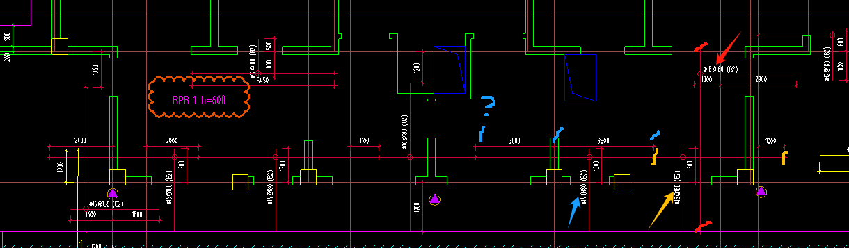
答疑:如下图所指,筏板基础平面图中所指钢筋是什么钢筋

提问网友:谢燕燕
提问日期:2025-10-02 22:18:23

筏板基础

2025-10-02 22:36:48 补充

筏板如图,蓝色蓝色箭头所指钢筋的布筋范围,应该是中间那根蓝线到右边,还是从左边到右边的范围呢?红色和黄色箭头所指的钢筋范围,是否正确?


已采纳
解答网友:GXZ

钻石专家

是属于筏面受力筋的附加钢筋,按设计标注的长度及小圆圈的线条范围布置

答疑解惑

0

评论0

请先
SL∕T 336-2025 水土保持工程质量验收与评价规范
SL∕T 336-2025 水土保持工程质量验收与评价规范
1分钟前 有人购买 去瞅瞅看
没有账号?注册  忘记密码?

社交账号快速登录

微信扫一扫关注
扫码关注后会自动登录网站