提问网友:何胜
提问日期:2025-10-02 16:40:50
2025-10-02 16:41:24 补充
2025-10-02 16:57:32 补充

已采纳
解答网友:钢筋撑起半边天
钻石专家
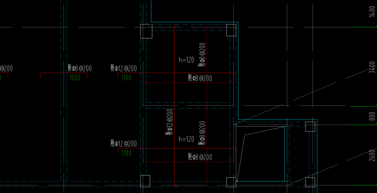
隔一布一是现场考虑布置的 软件里只要按间距定义,范围布置正确就可以了
100厚 120厚注意一下
解答网友:欢乐心中飞雪
钻石专家
正常布置负筋或者跨板受力筋就可以
附加当然就是在原来的基础上增加的,也就是重叠布置的啊,布筋范围重复是对的
解答网友:雪花飘 飘
铂金专家
跨板受力筋定义,
单板水平布置
解答网友:杨华
白银专家
屋面板先满布置双层双向C8@200,然后再布置附加钢筋;






评论0