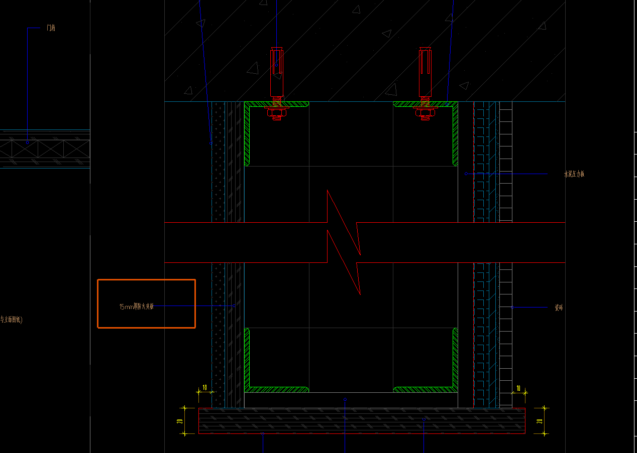
答疑:请问这种防火夹板(水平和竖直方向)、水平压力板都需要单独算吗,还是直接算图示投影

提问网友:大元宝
提问日期:2025-10-02 16:23:45

竖直


解答网友:xagcc

钻石专家

直接按面积计算就可以了

0

评论0

请先
《2024版建设工程工程量清单计价标准应用指南》-2024清单编制组-最权威配套用书-xycost.com
《2024版建设工程工程量清单计价标准应用指南》-2024清单编制组-最权威配套用书-xycost.com
6分钟前 有人购买 去瞅瞅看
没有账号?注册  忘记密码?

社交账号快速登录

微信扫一扫关注
扫码关注后会自动登录网站