BIM
BIM吧
整体模型
族
其他资料
Dynamo
设计
方案
整体场景
单体模型
RHINO
施工图设计
结构
机电设计
材质渲染
D5素材
ENS素材专区
lumion素材
PS素材
规范图集
标准规范
行业图集
教程
视频
软件
Office
编程
造价
施工技术
计量计价
造价答疑
在线工具
管理
登录
注册
搜索
当前位置:
首页
造价
造价答疑
正文
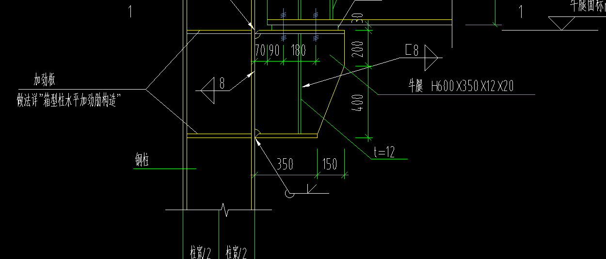
答疑:请问这个钢牛腿,查理论重量用h型钢构建查可以不
14分钟前
造价答疑
1
推广
提问网友:花洒
提问日期:2025-10-01 17:23:32
已采纳
解答网友:欢乐心中飞雪
钻石专家
可以
0
上一篇
答疑:请问哪位大神有PDF转CAD的软件,感谢2363660810@qq.com
下一篇
答疑:吊车梁
猜你喜欢
造价答疑
答疑:基础梁钢筋怎么输入
提问网友:李萌提问日期:2025-10-01 23:29:27图中钢筋在软件里输入不了?怎么处理...
2分钟前
0
造价答疑
答疑:再画第三层时突然第三层的柱跟梁看不见了,批量选择时有存在,也没有隐藏,是什么原因
提问网友:daqimudiao提问日期:2025-10-01 22:46:28解答网友:GXZ ...
2分钟前
0
造价答疑
答疑:这个变径高度具体是多少
提问网友:张银江提问日期:2025-10-01 22:16:35解答网友:GXZ ...
3分钟前
0
造价答疑
答疑:再画第三层时突然第三层的柱跟梁看不见了,批量选择时有存在,也没有隐藏,是什么原因
提问网友:daqimudiao提问日期:2025-10-01 22:03:512025-10-01 22:52:16 补充已采...
3分钟前
0
造价答疑
答疑:各位老师我想问下,关于天正为啥安装了打开显示超出使用期限我已经补丁过
提问网友:鱼提问日期:2025-10-01 21:53:35解答网友:竹风 ...
3分钟前
0
造价答疑
答疑:厕所蹲坑出做150高地台。这个地台一般是混凝土的还是砖砌筑的啊
提问网友:小小鸡咪花提问日期:2025-10-01 21:34:15解答网友:GXZ ...
4分钟前
0
评论
0
请先
登录
高清无水印 通桥(2021)5402-05 客货共线铁路钢筋混凝土框架箱涵 单孔 孔径:3.0m 铁路工程建设通用参考图集.pdf
8分钟前 有人购买
去瞅瞅看
在线客服
升级VIP
返回顶部
没有账号?
注册
忘记密码?
社交账号快速登录
已有账号?
登录
社交账号快速登录
微信扫一扫关注
扫码关注后会自动登录网站
使用其他方式登录/注册
评论0