BIM
BIM吧
整体模型
族
其他资料
Dynamo
设计
方案
整体场景
单体模型
RHINO
施工图设计
结构
机电设计
材质渲染
D5素材
ENS素材专区
lumion素材
PS素材
规范图集
标准规范
行业图集
教程
视频
软件
Office
编程
造价
施工技术
计量计价
造价答疑
在线工具
管理
登录
注册
搜索
当前位置:
首页
造价
造价答疑
正文
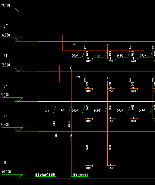
答疑:室内给排水的水平管是梁底标高吗
2025-09-30
造价答疑
6
推广
提问网友:※
提问日期:2025-09-30 15:50:46
解答网友:每时每刻
梁底-100
0
上一篇
答疑:收口式和盖板式的区别是什么
下一篇
答疑:还是研究不明白…..石鼓凳到底怎么画
猜你喜欢
造价答疑
答疑:谁有南方cass土方计算插件和安装及教学资料,1606559137@qq.com
提问网友:゛﹎Sweety提问日期:2025-10-28 19:17:08解答网友:小老百姓 ...
13小时前
3
造价答疑
答疑:这是隔一布一的意思吗
提问网友:陈伟提问日期:2025-10-28 19:28:46解答网友:十年工程人c10@160是柱子...
13小时前
2
造价答疑
答疑:老师好,需要DB11/T695-2025,1035156839,感谢
提问网友:发奋读书提问日期:2025-10-28 19:30:04解答网友:SOFTICE ...
13小时前
1
造价答疑
答疑:这个节点是这部分吗
提问网友:汉江河堤提问日期:2025-10-28 19:38:36解答网友:SOFTICE ...
13小时前
1
造价答疑
答疑:您好 :请问
提问网友:难得糊涂提问日期:2025-10-28 19:51:37加密锁只能用6.0或7.0程序吗?已...
13小时前
1
造价答疑
答疑:云南省20定额中金属面氟碳漆是刷一遍还是两遍
提问网友:123提问日期:2025-10-28 19:53:05解答网友:Gabby
13小时前
1
评论
0
请先
登录
高清无水印 22TJ721 BM连锁隔墙体系、BM免支模壳体系、FQ复合保温体系构造(CABRT086).pdf
8分钟前 有人购买
去瞅瞅看
在线客服
升级VIP
返回顶部
没有账号?
注册
忘记密码?
社交账号快速登录
已有账号?
登录
社交账号快速登录
微信扫一扫关注
扫码关注后会自动登录网站
使用其他方式登录/注册
评论0