BIM
BIM吧
整体模型
族
其他资料
Dynamo
设计
方案
整体场景
单体模型
RHINO
施工图设计
结构
机电设计
材质渲染
D5素材
ENS素材专区
lumion素材
PS素材
规范图集
标准规范
行业图集
教程
视频
软件
Office
编程
造价
施工技术
计量计价
造价答疑
在线工具
管理
登录
注册
搜索
当前位置:
首页
造价
造价答疑
正文
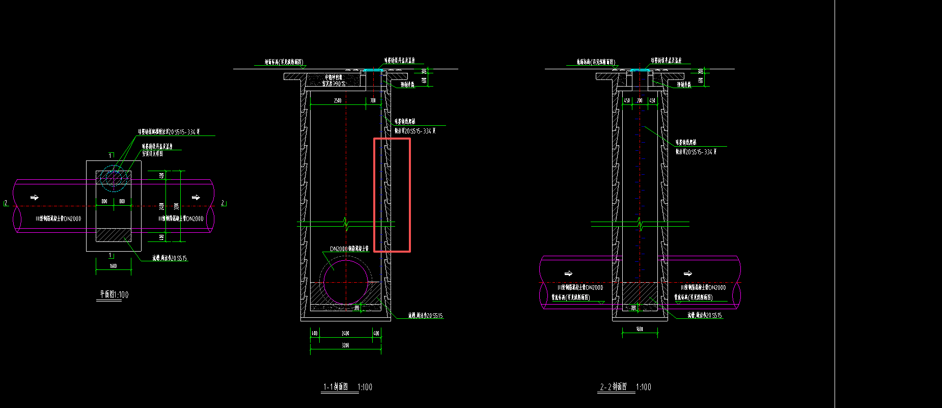
答疑:请问下面框选的井壁是什么意思
5天前
造价答疑
3
推广
提问网友:明初
提问日期:2025-09-30 12:33:45
已采纳
解答网友:可遇难求
钻石专家
是钢筋混凝土护壁。
0
上一篇
答疑:矩形风管保温层计算公式问题
下一篇
答疑:各位老师有没有云南2020定额安装部分第十册给排水部分的定额,可以发我一份吗。
猜你喜欢
造价答疑
答疑:老师们,自定义楼梯,楼梯井的栏杆怎么布置
提问网友:老头儿提问日期:2025-10-05 11:24:27解答网友:大家广联 ...
16小时前
1
造价答疑
答疑:这里的纵向钢筋图怎么理解,这不是重叠了吗?
提问网友:.提问日期:2025-10-05 11:38:28解答网友:钢筋撑起半边天 ...
16小时前
1
造价答疑
答疑:这个情况进线电缆怎么算,是从上一台配电箱引进电缆的吗?
提问网友:Slasssh提问日期:2025-10-05 11:49:02这个情况进线电缆怎么算,是从上...
16小时前
1
造价答疑
答疑:通风系统的排气扇在安装算量中算什么构件
提问网友:甄璟弟提问日期:2025-10-05 13:12:56解答网友:xagcc ...
16小时前
1
造价答疑
答疑:此图既是是条形基础也是砖基础吗?
提问网友:Soobin提问日期:2025-10-05 13:17:39解答网友:xagcc ...
16小时前
2
造价答疑
答疑:图中是板负筋还是跨版受力筋?它们如何区分
提问网友:Soobin提问日期:2025-10-05 11:08:44已采纳解答网友:大家广联 ...
16小时前
2
评论
0
请先
登录
高清PDF《岩石力学》任建喜、张向东 高等学校土木工程本科指导性专业规范配套教材.pdf
5分钟前 有人购买
去瞅瞅看
在线客服
升级VIP
返回顶部
没有账号?
注册
忘记密码?
社交账号快速登录
已有账号?
登录
社交账号快速登录
微信扫一扫关注
扫码关注后会自动登录网站
使用其他方式登录/注册
评论0