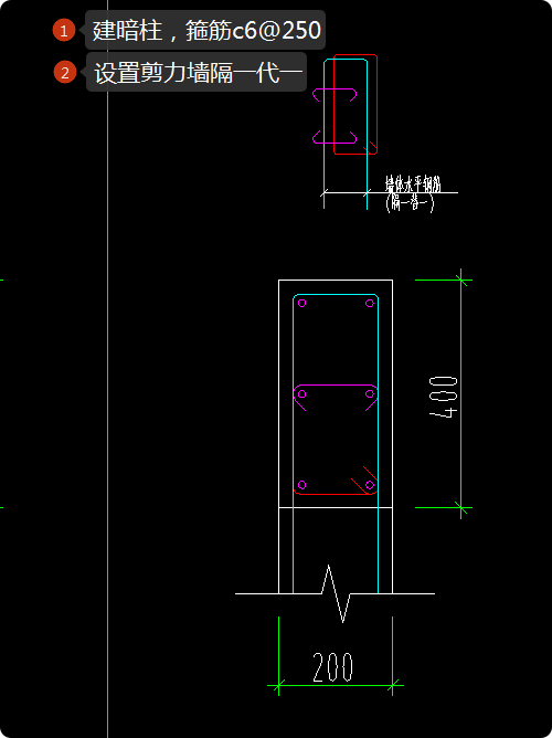
答疑:暗柱箍筋与剪力墙水平筋隔一替一怎么在软件中处理

提问网友:庸俗
提问日期:2025-09-29 20:29:07

剪力墙


已采纳
解答网友:SOFTICE

黄金专家

箍答疑解惑

解答网友:钢筋撑起半边天

钻石专家

定义剪力墙里选择水平筋计入边缘构件的体积配筋率就好了

暗柱箍筋正常定义间距就可以了

0

评论0

请先
GB/T50854-2024房屋建筑与装饰工程工程量计算标准-在线版全网首发,附送2024版清单全集10册OCR可搜索版及最全对比表PDF下载
GB/T50854-2024房屋建筑与装饰工程工程量计算标准-在线版全网首发,附送2024版清单全集10册OCR可搜索版及最全对比表PDF下载
10分钟前 有人购买 去瞅瞅看
没有账号?注册  忘记密码?

社交账号快速登录

微信扫一扫关注
扫码关注后会自动登录网站